Regina Cleri

Amenities

what our residents enjoy

Accommodation

Residents at Regina Cleri enjoy suite
accommodations, including a living room and separate bedroom, full bathroom and kitchenette with mini-fridge, sink and cabinetry. Room furnishings are provided unless you prefer your own.

On-Site Nurse and Health Care at Home

We have an on-site Registered Nurse who is available five days a week to help you manage your medical needs and navigate the often complex healthcare system.  Rita regularly works with our residents to prevent health problems, address current medical concerns, and promote wellness.  We also partner with local health care groups to offer in-home primary care, lab draws, physical therapy, occupational therapy, and podiatry.

Transportation

Our covered carport has assigned parking spots for residents’ vehicles.  Priestly brothers help one another at Regina Cleri – those who drive assist those who do not drive.  Other transportation can be provided by local volunteers as needed for medical appointments or ministries across the Archdiocese.

Meals and Dining

We offer full meal service three
times a day, seven days a week. Pastry chef and small business owner Anne Pogue sources premium ingredients and plans each meal, and dining room team members provide table service so you can relax and enjoy the dining experience.

Laundry

Housekeeping and laundry services are offered five days a week.  We also have a self-service laundry room for residents’ use, with detergent and maintenance provided.

Community Events

Enjoy the camaraderie at a community event, such as the annual priest retreat or a monthly dinner party.  You may also host your own event in our conference room, such as a support group, community discussion, or game night.

Solitude and Nature

View the beautiful grounds and wildlife from the back porch, the four seasons room, or the outdoor Rosary benches.  The veranda at the front entrance has lights, heaters and fans, so you can enjoy conversation or prayer outside at any time.

Recreational Activities

The daily newspaper, local sports, movie nights and ice cream socials are some of the many recreational activities available to residents of Regina Cleri Community.

Chapel

Mass is concelebrated every day in our chapel.  Our sacristans and musicians work alongside you to provide all the items and support you need for mass, benediction, and other liturgical events.

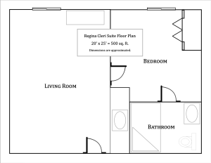
Floor Plans

Frequently Asked Questions

What are the room dimensions?

Click Here for the floor plans.  Please Contact Us to request an informational brochure with a full-page diagram of the floor plans.

Are visitors allowed?

Yes! Your friends and family are welcome to visit from 8 a.m. until 7 p.m., with the exception of those with active COVID-19 or other infectious illnesses.  Visitors should contact residents directly to schedule a visit.

What are some highlights of the city of Shrewsbury?

Major shopping is less than five minutes away from Regina Cleri.  We are centrally located in the Archdiocese of St. Louis and next door to the Cardinal Rigali Center.  Explore historic Webster Groves or The Hill neighborhood with upscale Italian eateries, or enjoy Ted Drewes frozen custard across from Catholic Supply in Southampton.

Where will I exercise?

There are many fitness opportunities available from which to choose.
Exercise class is offered at Regina Cleri three days a week, and fitness
equipment is available 24/7 in our multipurpose room. You can get a
free membership to nearby gyms through the Renew Active program
offered through Archdiocesan health insurance, and you can walk around the beautiful campus.

Can you make my favorite meal?

Absolutely!  Our kitchen manager and lead cook is well-versed in a variety of different cuisines and is always excited to try a new recipe or dish.

Can I hang pictures & wall decorations?

Yes. Our maintenance team is happy to help you hang up pictures and wall decorations. For TV mounting, Tech2Call, a trusted TV-mounting
provider, is available for your hire. We are happy to help you set up an
appointment.